ID об'єкта : 2W6019
Продаж 165,000$ - Квартира, Новобудова
Продаж дворівневої квартири з панорамним видом на Дніпро в ЖК Great
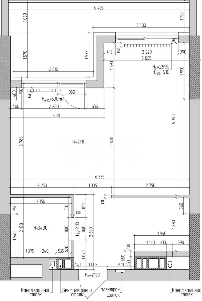
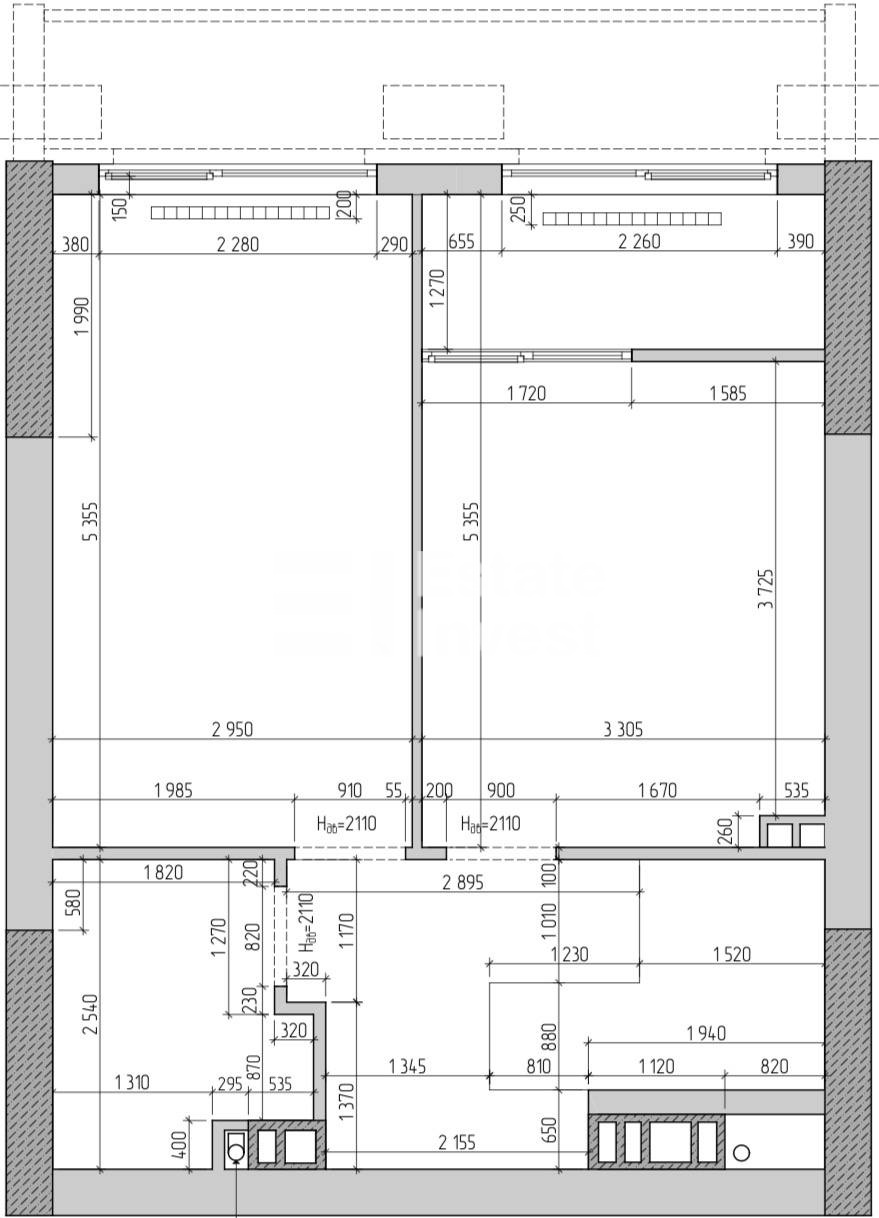
Пропонується до продажу простора дворівнева квартира площею 90 м², розташована на 25 поверсі сучасного житлового комплексу ЖК Great.
З вікон відкривається панорамний вид на Дніпро, який створює відчуття простору, світла та простору. Високий поверх дарує багато природного світла та красиві краєвиди щодня.
Головна перевага квартири
У квартирі вже виконаний великий обсяг якісних чорнових робіт, що значно економить час та бюджет майбутнього власника.
Виконано:
• залита стяжка підлоги
• виконана якісна штукатурка стін
• закладена система теплої підлоги
• повністю розведена електрика
• встановлений електрощит з окремими автоматами на кожну групу розеток та виводів
• встановлені фільтри для води
• закладена система вентиляції
Додатково вже придбані:
• змішувачі
• міжкімнатні двері прихованого монтажу
• на терасі покладений український граніт
• підвіконня з індійського каменю
Також для квартири розроблений дизайн-проєкт, який можна реалізувати та завершити інтер’єр без додаткових витрат на проєктування.
Переваги квартири
• площа — 90 м²
• два рівні, що дає більше простору та можливостей для зонування
• 25 поверх — максимум світла та вражаючий панорамний вид
• панорама на Дніпро
• простора тераса
• квартира практично готова до фінального ремонту
• документам більше 3х років
Про житловий комплекс
ЖК Great — сучасний житловий комплекс на Дніпровській набережній з новими будинками, продуманою територією та власною інфраструктурою.
У комплексі:
• сучасна архітектура та нові будинки
• закриті двори з дитячими та спортивними майданчиками
• комерційні приміщення на перших поверхах (кафе, магазини, сервіси)
• підземний та гостьовий паркінг
Важлива перевага комплексу:
у будинку встановлений генератор, який забезпечує роботу водопостачання, опалення та ліфтів під час відключень електроенергії.
Локація
Поруч із комплексом знаходяться:
• River Mall
• супермаркети Novus та Сільпо
• ресторани, кав’ярні, салони краси
• спортивні клуби
• школи та дитячі садки
Це чудовий варіант для тих, хто хоче видову квартиру у сучасному комплексі та завершити інтер’єр під власний стиль, маючи вже виконану найскладнішу частину ремонту.
ID об’єкта: 2W6019
Подивитися схожі об'єкти























